CÔNG TY CỔ PHẦN ĐẦU TƯ ADF
CÔNG TY CỔ PHẦN ĐẦU TƯ ADF
Chuyên Gia Xây Nhà Trọn Gói
Trang chủ
Giới thiệu
Về tổng công ty
Hệ thống chi nhánh
MẪU NHÀ ĐẸP
NHÀ PHỐ
2 tầng
3 tầng
4 tầng
5 tầng
Biệt thự
1 tầng
2 tầng
3 tầng
4 tầng
Dinh thự - Lâu đài
Mẫu toà nhà văn phòng
Khách sạn
Mẫu chung cư mini cho thuê
Dịch vụ xây dựng
Xây nhà trọn gói
Xây dựng tòa nhà, khách sạn
Xây dựng biệt thự cao cấp
Công trình triển khai
Tòa nhà văn phòng
Khách sạn
Dinh thự - Lâu đài
Nhà phố
Biệt thự
Kinh nghiệm làm nhà
PHONG THỦY NHÀ Ở
Báo giá
Hoạt động - Đời sống
THIỆN NGUYỆN ADF
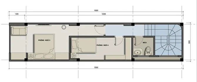
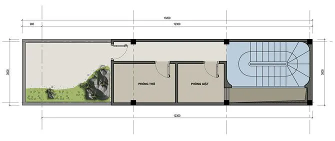
Mẫu nhà năm tầng số 23
Trang chủ
Nhà phố
5 tầng
Mẫu nhà năm tầng số 23
Thông tin dự án
Mẫu nhà năm tầng số 23
Các dự án khác
Mẫu nhà năm tầng số 42
Tiến độ thi công công trình nhà chú Huấn - Lê Trọng Tấn
Mẫu nhà năm tầng số 53
Mẫu nhà năm tầng số 40
Mẫu nhà năm tầng số 19
Mẫu nhà năm tầng số 16
Mẫu nhà năm tầng số 17
Mẫu nhà năm tầng số 6
Mẫu nhà năm tầng số 7
Mẫu nhà năm tầng số 29
Mẫu nhà năm tầng số 5
GỌI NGAY: 0968.037.444
NHẮN ZALO: 0968.037.444
fb/ChuyenGiaNhaCaoTang