CÔNG TY CỔ PHẦN ĐẦU TƯ ADF
CÔNG TY CỔ PHẦN ĐẦU TƯ ADF
Chuyên Gia Xây Nhà Trọn Gói
Trang chủ
Giới thiệu
Về tổng công ty
Hệ thống chi nhánh
MẪU NHÀ ĐẸP
NHÀ PHỐ
2 tầng
3 tầng
4 tầng
5 tầng
Biệt thự
1 tầng
2 tầng
3 tầng
4 tầng
Dinh thự - Lâu đài
Mẫu toà nhà văn phòng
Khách sạn
Mẫu chung cư mini cho thuê
Dịch vụ xây dựng
Xây nhà trọn gói
Xây dựng tòa nhà, khách sạn
Xây dựng biệt thự cao cấp
Công trình triển khai
Tòa nhà văn phòng
Khách sạn
Dinh thự - Lâu đài
Nhà phố
Biệt thự
Kinh nghiệm làm nhà
PHONG THỦY NHÀ Ở
Báo giá
Hoạt động - Đời sống
THIỆN NGUYỆN ADF
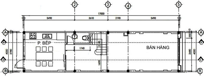
Mẫu nhà năm tầng số 14
Trang chủ
Nhà phố
Mẫu nhà năm tầng số 14
Thông tin dự án
Mẫu nhà năm tầng số 14
Các dự án khác
Mẫu nhà 4 tầng số 25
Mẫu nhà ba tầng số 20
Mẫu nhà ba tầng số 22
Mẫu nhà ba tầng số 24
Mẫu nhà ba tầng số 25
Mẫu nhà ba tầng số 27
Mẫu nhà ba tầng số 28
Mẫu nhà ba tầng số 30
Mẫu nhà ba tầng số 31
Mẫu nhà ba tầng số 32
Mẫu nhà ba tầng số 33
Mẫu nhà ba tầng số 37
GỌI NGAY: 0968.037.444
NHẮN ZALO: 0968.037.444
fb/ChuyenGiaNhaCaoTang