Mẫu nhà ba tầng số 1
Mặt tiền hiện đại, đơn giản nhưng mang dấu ấn riêng

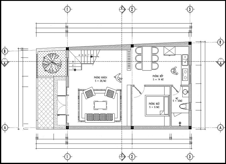
Nằm trên lô đất nhỏ 6x7m, để tận dụng tối đa diện tích xây dựng, các kiến trúc sư đã tính toán khéo léo, lên phương án hợp lý để ngôi nhà đảm bảo công năng, thẩm mỹ, lại có không gian sáng sủa.

Nổi bật với mặt tiền hiện đại, các đường nét kiến trúc vuông vức, gãy gọn, điểm nhấn là cây xanh ở ban công tầng 2 giúp mặt tiền trở nên cuốn hút, thực sự đã chinh phục được trái tim của chủ đầu tư.

Lối thiết kế hướng đến tinh thần tối giản nhưng tiện nghi với công năng tối ưu cho sinh hoạt hàng ngày.
Công năng tối ưu
Tất cả các không gian trong nhà được sắp xếp một cách thoáng mở khoa học. Cùng với đó là những khoảng không được bố trí xuyên suốt để đón ánh sáng và gió trời tạo sự thoáng đãng trong lành.



Các vị trí phòng ốc, các khu vực chức năng có cách sắp xếp hợp lý từ ngoài vào trong theo hành trình di chuyển của người sử dụng.
Cách bố trí nội thất đơn giản, tối ưu diện tích, mở rộng không gian

Sử dụng màu sắc thời thượng với cách phối màu độc đáo khiến căn nhà trở nên đặc sắc, mang lại một không gian ấm cúng, nồng nhiệt nhưng không gay gắt.

Nhờ sự tối thiểu đồ đạc, tổng quan ngôi nhà có sự gọn gàng, không gây rối mắt, giúp ngôi nhà thông thoáng, rộng rãi, đồng thời còn giúp gia chủ bớt thời gian dọn dẹp.

Nội thất phòng ngủ được bài trí đầy đủ, hợp lý, không quá cầu kỳ cũng không quá đơn điệu đảm bảo không gian riêng tư và thoải mái cho các thành viên. Mỗi không gian đều mở ra một góc nhìn độc đáo, tạo nên một tổng thể thống nhất, hài hòa, nhẹ nhàng.




Với lối thiết kế khéo léo trong từng khu vực, và tối ưu diện tích phù hợp cho từng nhu cầu sử dụng của các thành viên trong gia đình, ngôi nhà hứa hẹn sẽ là một nơi lý tưởng để nghỉ ngơi sau ngày dài học tập, làm việc mệt mỏi.